Fotogalerie - Slider
Toužíte po malé útulné chatě, po místě, kde budete mít soukromí a klid? Zároveň máte pozemek bez dostupných sítí? Řešením může být novinka modulárního systému Blokki – kontejnerový domek Blokki mini (v odkazu najdete krátké video ze vzorové realizace Blokki mini.
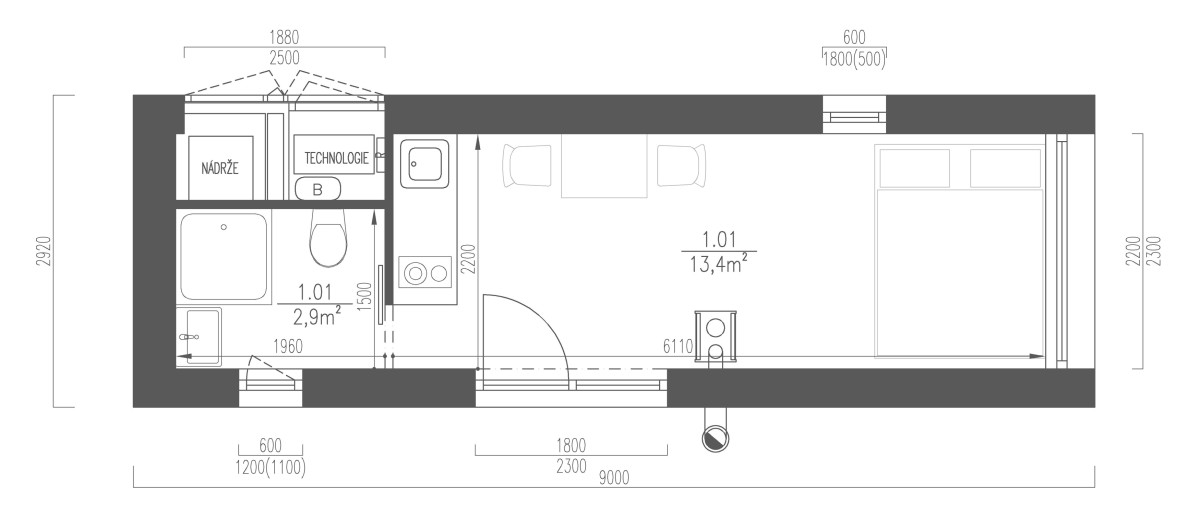
Blokki mini je typová stavba vybavená technologií pro provoz bez napojení na veřejnou infrastrukturu. Nosnou konstrukci tvoří lodní kontejner zkrácený na délku 9 metrů. Proč právě 9 metrů dlouhý modul? Cílem je nabídnout stavbu, jejíž zastavěná plocha nepřekračuje hranici 25 m². Taková stavba nevyžaduje nutnost absolvovat složité stavební řízení, její legalizace je podstatně jednodušší. V případě, že se umísťuje na zahradu rodinného domu, není třeba žádné povolení. V případě, že se umísťuje na volný pozemek, postačí územní souhlas.
Mini disponuje obytným prostorem s kuchyňským koutem, koupelnou a technickým zázemím pro soběstačný provoz. Elektřinu stavba získává ze sluneční a větrné energie, pro její uchování slouží akumulátory. Příjemnou atmosféru v chladných dnech vykouzlí malá krbová kamna vybavená malou plotnou. Kamna lze nahradit nebo doplnit komfortním podlahovým topením. Domek pracuje šetrně s dešťovou vodou, která je zadržována ve velké vnitřní nádrži, dále je čištěna a užívána na mytí nebo splachování. Pokud na pozemku není studna ani jiný vhodný vodní zdroj, pitná voda je dovážena. Jako praktický doplněk lze přiobjednat osmózu, moderní zařízení pro dokonalé vyčištění dešťové vody na pitnou. Toaleta je kazetová. Obsah naplněné kazety se ukládá na pozemku do kompostové jámy, nebo se odváží.
- dispozice 1kk
- zastavěná plocha 25 m²
- cena provedení Blokki mini classic - 1,2 mil. Kč bez DPH
- provedení a vybavení Blokki mini je specifické, více info zde v letáku
Podrobný ceník a popis, jak je řešena off grid technologie vám ochotně pošleme na váš email, stačí nás oslovit pomocí Kontaktního formuláře nebo napsat na info@blokki.cz.
