Fotogalerie - Slider
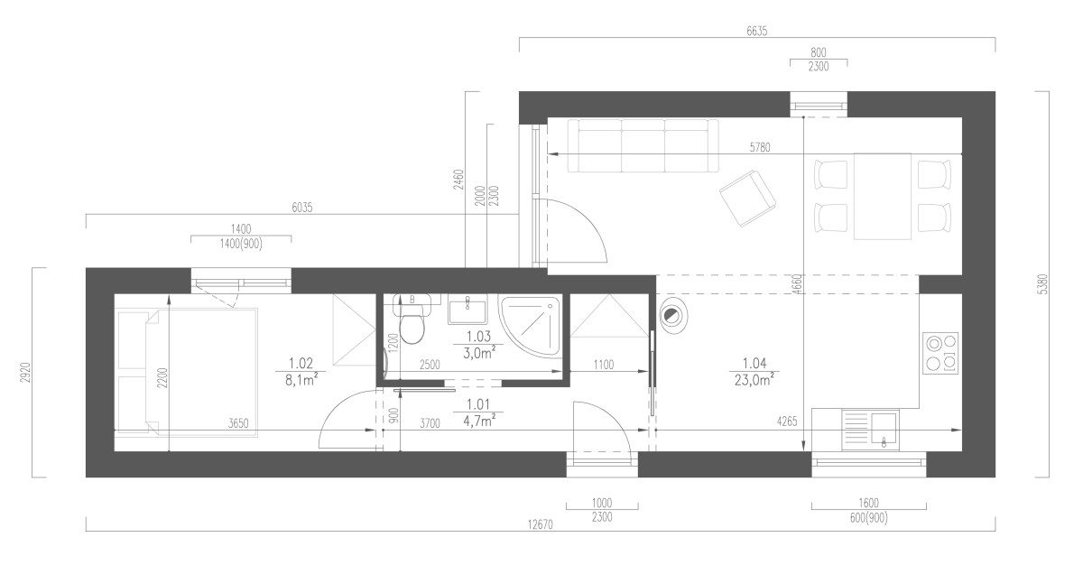
1.5blokki home může sloužit jako příjemná víkendová chata i jako minimalistický domek na trvalé bydlení. Stavba dispozičně vychází ze základního modulu 1blokki, výhodou je obývací pokoj rozšířený o poloviční modul. Domek disponuje menší ložnicí, koupelnou a prostornou obytnou částí s kuchyňským koutem. Tato varianta Blokki bude vhodná i pro trvalé bydlení, stačí doplnit izolační trojskla, zesílit vnější hlavní izolační vrstvu a ekologický zdroj energie v podobě střešní fotovoltaické elektárny.
- dispozice 2kk
- zastavěná plocha 53 m²
- cena provedení classic od 1,89mil. Kč bez DPH (více o nabízených provedení v sekci Co je blokki v článku Interiér)
Ceník vám ochotně pošleme na váš email, stačí nás oslovit pomocí Kontaktního formuláře nebo napsat na info@blokki.cz.
(vizualizace v této prezentaci mají orientační charakter)
