Fotogalerie - Slider
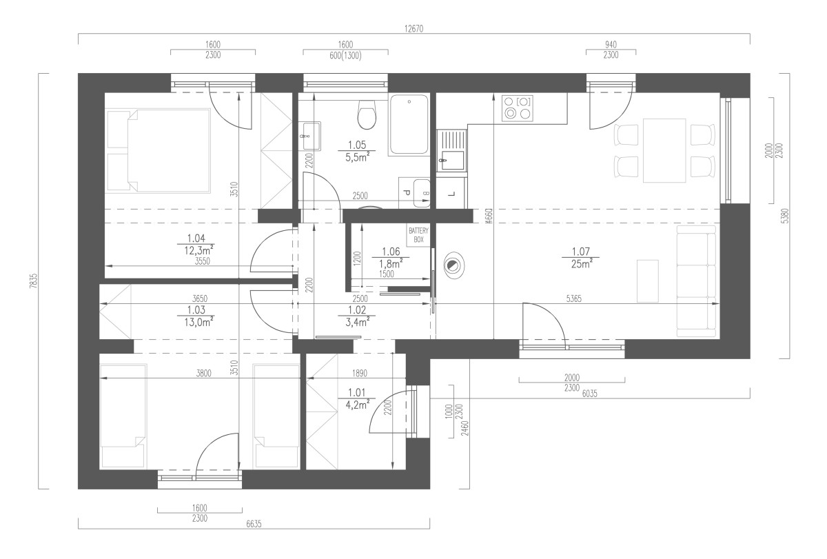
2.5blokki home A stavíme na základu dvou čtyřicetistopých lodních kontejnerů celých a jednoho zkráceného na polovinu. Vzniká tak stavba s příjemným vnitřním obytným prostorem o ploše cca 66 metrů čtverečních. Výhodou varianty A je rozšíření obou ložnic směrem do prostředního kontejneru, jejich šíře tak činí 3,4 metrů.
- dispozice 3kk
- zastavěná plocha 85 m²
- cena provedení classic od 2,59mil. Kč bez DPH (více o nabízených provedeních v sekci Co je blokki v článku Interiér)
Ceník vám ochotně pošleme na váš email, stačí nás oslovit pomocí Kontaktního formuláře nebo nám napsat na info@blokki.cz.
