Fotogalerie - Slider
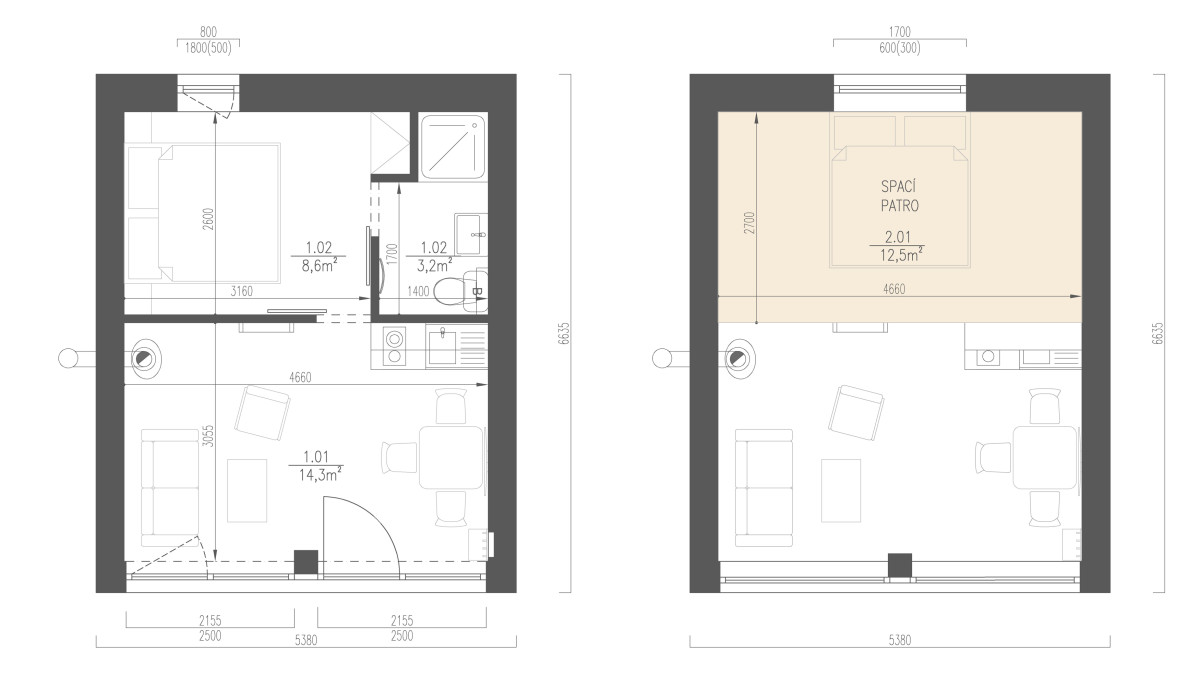
1blokki home A je novinkou v typové řadě modulárních staveb Blokki a zároveň první stavbou Blokki s otevřeným stropem v obývacím pokoji a spacím patrem. Stavba na první pohled zaujme celoprosklenou štítovou stěnou. Díky sedlové střeše dobře zapadne i do klasické vesnické zástavby. 1blokki A je ideální jako rekreační chata, ale může dobře sloužit i jako startovací bydlení. Disponuje obývacím pokojem s kuchyňským koutem, ložnicí, plnohodnotnou koupelnou a spacím patrem otevřeným do obývacího pokoje.
Stavebně technologické řešení, systém izolace a velice pevná ocelová konstrukce (konstrukční prvek této typové stavby je ocelovo-dřevěná konstrukce pro možnost prefabrikace podkrovní části stavby) jsou dimenzovány tak, aby budova byla vhodná pro celoroční bydlení. Kombinace oken s izolačními trojskly a velmi kvalitní izolace tvrdou PUR pěnou stavbu řadí do nízkoenergetického standardu.
- dispozice 2kk
- zastavěná plocha 36 m²
- cena provedení classic od 1,97mil. Kč bez DPH (více o nabízených provedeních v sekci Co je blokki v článku Interiér)
Ceník vám ochotně pošleme na váš email, stačí nás oslovit pomocí Kontaktního formuláře nebo nám napsat na info@blokki.cz.
(vizualizace v této prezentaci mají orientační charakter)
