Fotogalerie - Slider
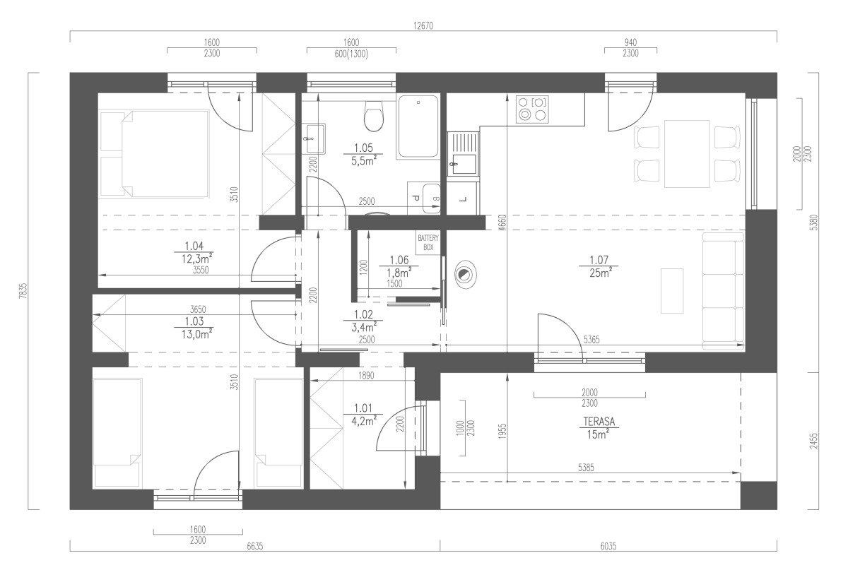
Nosná konstrukce stavby 2.5blokki home T je ze tří dvanáctimetrových kontejnerových konstrukcí. Od jiných typových Blokki se liší terasou plynně navazující na obytný prostor. Vlastní bydlení ve tvaru 3kk má plochu 66 m². Polovina předního kontejneru je otevřena do vnějšího prostoru a tvoří zastřešenou terasu. Vnitřní uspořádání domu charakterizuje dostatečně velký obývací pokoj s místem pro kuchyňkou linku. Dvě ložnice jsou tak akorát velké na to, aby v nich bylo dost místa na odpočinek, ukládání věcí, nebo třeba učení. Nechybí prostorná koupelna na celou šířku kontejneru, komora a zádveří. Krytá terasa je na stěnách, podlaze a podhledu obložena dřevem.
- dispozice 3kk
- zastavěná plocha 100 m²
- cena provedení classic od 2,84mil. Kč bez DPH (více o nabízených provedeních v sekci Co je blokki v článku Interiér)
Ceník vám ochotně pošleme na váš email, stačí nás oslovit pomocí Kontaktního formuláře nebo nám napsat na info@blokki.cz.
