Fotogalerie - Slider
1blokki home tvoří ideální zázemí pro víkendovou nebo prázdninovou relaxaci, kdy chcete trávit co nejvíce času pod otevřeným nebem v přírodě, ale spát chcete pod vlastní střechou. Jeden 40stopový lodní kontejner jsme proměnili v jednoduchý domek, který si na nic nehraje – je to řešení pro všechny, kdo hledají malé rekreační obydlí s nízkými provozními náklady a bez velkých nároků na údržbu, ale přesto skýtající dostatečné pohodlí.
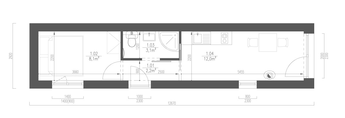
- dispozice 2kk
- zastavěná plocha 36 m²
- realizováno např. zde
- cena standardu classic od 1,53mil. Kč bez DPH (více o nabízených standardech v sekci Co je blokki v článku Interiér)
Ceník vám ochotně pošleme na váš email, stačí nás oslovit pomocí Kontaktního formuláře nebo napsat na info@blokki.cz.
(vizualizace v této prezentaci mají orientační charakter)
