Fotogalerie - Slider
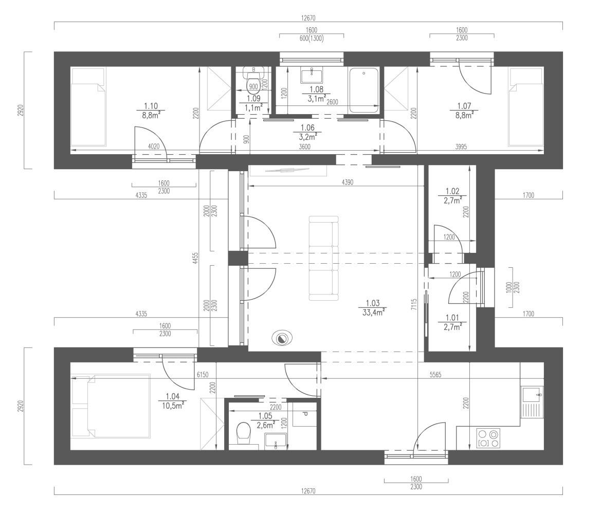
3blokki home H je nápaditý dům, který může sloužit jako neotřelé bydlení i jako prostorná víkendová chata. Skládá se ze tří 40stopových kontejnerů, uspořádaných do obdélníku o rozměrech 12,7 m x 10,3 m s místem pro příjemnou centrální terasu. Tu si můžete vybavit markýzou a využívat jí i při nepřízni počasí. Prostřední kontejner jsme rozpůlili a důkladně vyztužili – díky tomu vznikl prostorný obývací pokoj, ve kterém najde dostatek místa pro každodenní život i vícečlenná rodina. Pro pohodlný ranní provoz dům disponuje dvěma koupelnami. Rozměrná plochá střecha je vhodná pro instalaci solárních panelů a využívání sluneční energie.
- dispozice 4kk
- zastavěná plocha 105 m²
- cena provedení classic od 3,21mil. Kč bez DPH (více o nabízených provedeních v sekci Co je blokki v článku Interiér)
Ceník vám ochotně pošleme na váš email, stačí nás oslovit pomocí Kontaktního formuláře nebo nám napsat na info@blokki.cz.
(vizualizace v této prezentaci mají orientační charakter)
