Fotogalerie - Slider
2blokki home S propojuje dva kontejnery a výsledkem je příjemný domek, jako stvořený pro dny odpočinku. Může ale plnit i roli startovacího a cenově výhodného bydlení pro mladou rodinu nebo praktického přízemního domu pro aktivní seniory. Nechybí v něm totiž nic, na co jste zvyklí a co potřebujete k životu – vnitřní prostor jsme vyladili do posledního detailu tak, aby byl variabilní, prostorově nenáročný a hlavně kvalitně zpracovaný. Přesvědčete se sami, nahlédněte dovnitř - video prohlídka vzorové stavby. 2blokki home S.
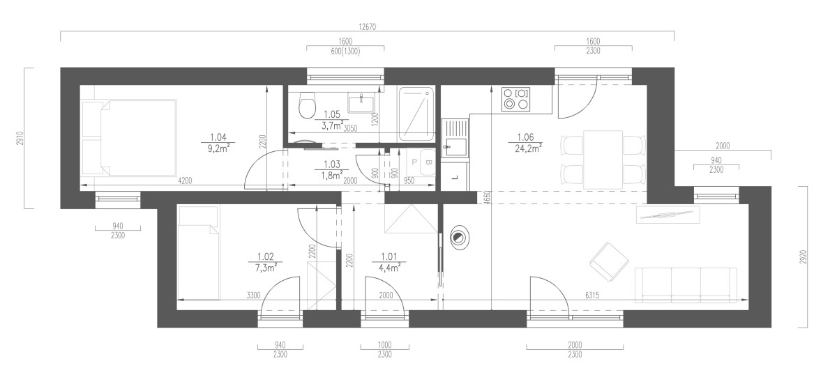
- dispozice 3kk
- zastavěná plocha 70 m²
- cena provedení classic od 2,32mil. Kč bez DPH (více o nabízených provedení v sekci Co je blokki v článku Interiér)
Ceník vám ochotně pošleme na váš email, stačí nás oslovit pomocí Kontaktního formuláře nebo napsat na info@blokki.cz.
(vizualizace v této prezentaci mají orientační charakter)
