Fotogalerie - Slider
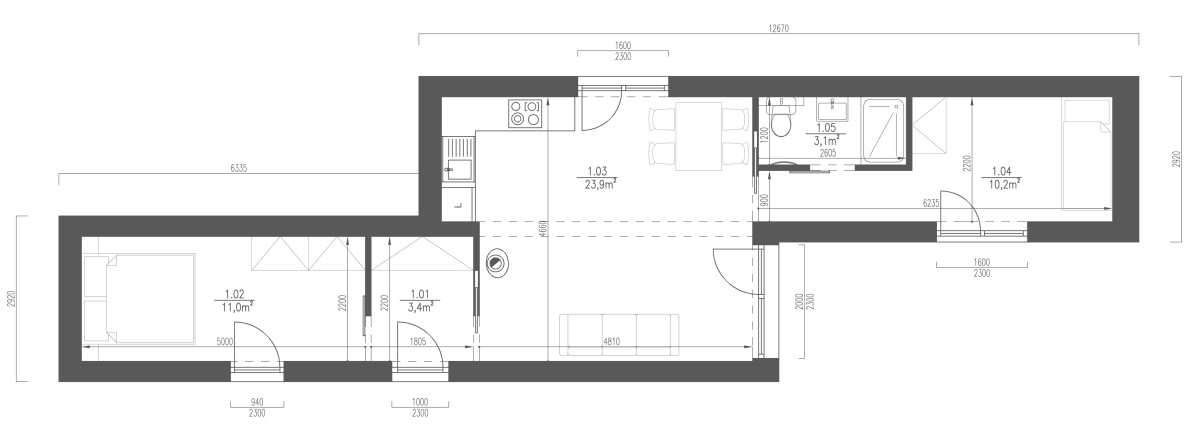
Při výstavbě 2blokki home Z zpracováváme dva vyřazené lodní kontejnery, stavíme je k sobě delšími stranami s podélným posunem o 6 metrů. Stavba na délku měří téměř 20 metrů a hodí se na úzký podlouhlý pozemek. Vnitřní uspořádání je zajímavé tím, že ložnice jsou v protilehlých koutech domu, jejich obyvatelé se tak neruší. Levá ložnice skýtá dostatek prostoru pro případné doplnění oddělené šatny.
- dispozice 3kk
- zastavěná plocha 72 m²
- cena provedení classic od 2,5mil. Kč bez DPH (více o nabízených provedení v sekci Co je blokki v článku Interiér)
Ceník vám ochotně pošleme na váš email, stačí nás oslovit pomocí Kontaktního formuláře nebo napsat na info@blokki.cz.
