Fotogalerie - Slider
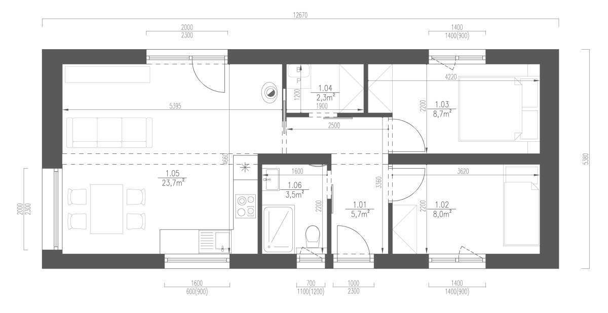
2blokki home C je tvarově nenápadný domek zhotovený na základě dvou kontejnerových konstrukcí spojených k sobě podélně. Stavbu charakterizuje minimalistický tvar kvádru, kruhová okna (nejsou v základní ceně) mohou tvořit zajímavý protiklad hranatých tvarů. Vnitřní dispozice klade důraz na dostatečně velký obytný prostor, naopak dvě ložnice jsou velké tak akorát pro chvíle odpočinku. Přesunutím příčky mezi ložnicemi lze vytvořit jednu větší místnost pro spaní a i třeba oddělenou šatnu.
- dispozice 3kk
- zastavěná plocha 69 m²
- cena provedení classic od 2,21mil. Kč bez DPH (více o nabízených provedení v sekci Co je blokki v článku Interiér)
Ceník vám ochotně pošleme na váš email, stačí nás oslovit pomocí Kontaktního formuláře nebo napsat na info@blokki.cz.
