atypická realizace

Bistro Selská mini, Havlíčkův Brod

2025

Atypická realizace bistra, která vznikla ve spolupráci s havlíčkobrodskou firmou Highlandsport.cz. Zadáním klienta bylo vytvořit nový objekt rychlého občerstvení, který bude vizuálně ladit s původní budovou sportovních potřeb.

Navrhli jsme modul na míru, který splňuje požadavky na funkčnost provozu i vzhled – jednoduchý, přehledný interiér a venkovní dřevěná terasa pro pohodlné posezení zákazníků.

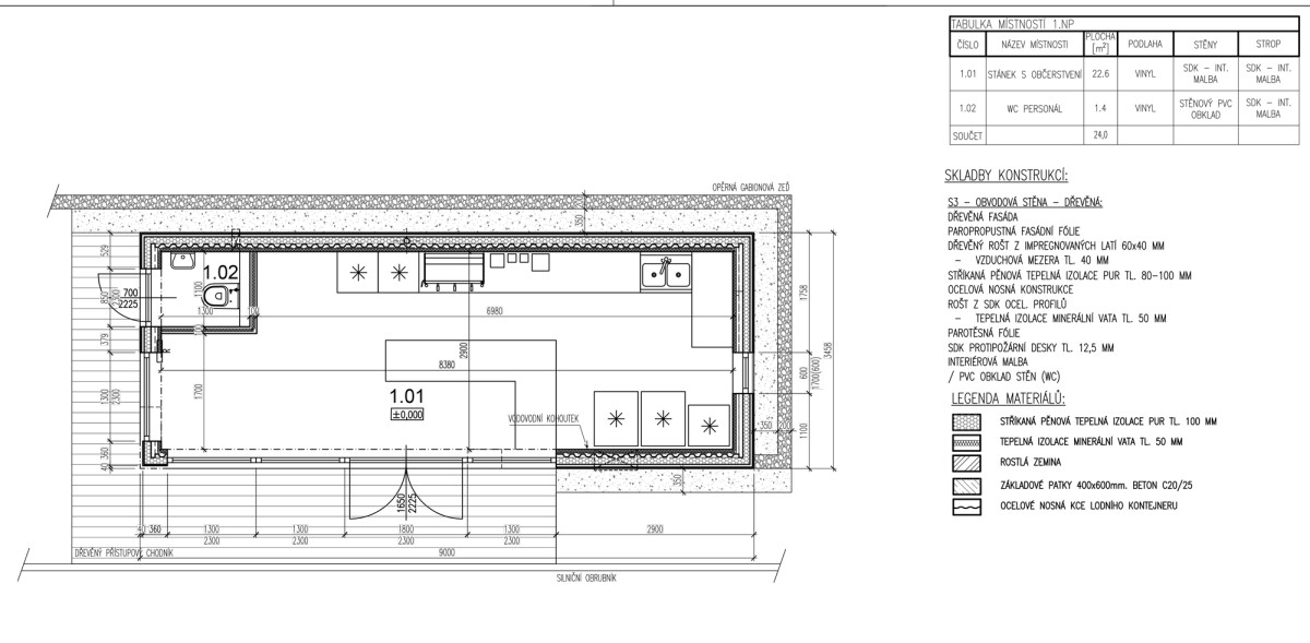
Technické informace:

  • Nosná konstrukce: ocelový lodní kontejner typu 40’,
    zkrácený na délku 9 m a rozšířený na šířku 3 m

  • Vytápění: elektrické podlahové

  • Fasáda: modřínové dřevo

  • Půdorys: viz níže

Výhodou modulárního stavitelství Blokki je jeho transportovatelnost – stavby jsme schopni převážet i na stovky kilometrů. O to víc si vážíme každé příležitosti, kdy můžeme stavět lokálně, v našem domovském regionu.

Modul: Reference