atypická realizace

Zahradní domek se saunou a dílnou

2024

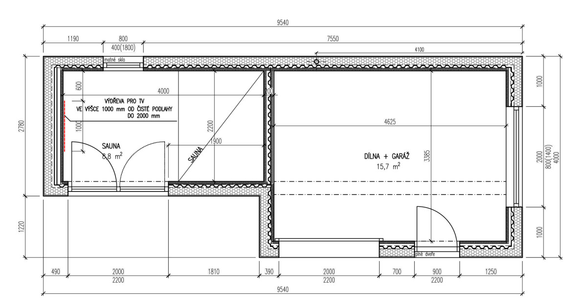
Tato individuální zakázka vznikla na základě konkrétního přání klienta: zahradní objekt, který propojí relaxaci v sauně s praktickým zázemím pro dílnu a garáž.

Navrhli jsme atypický modul, který konstrukčně vychází z 40’ lodního kontejneru, ale je výrazně upraven:

  • Délka zkrácena z původních 12 m na 9 m

  • Šířka rozšířena z 2,4 m na 4 m v části garáže a dílny

Výsledkem je elegantní zahradní domek, který svým výrazem harmonicky doplňuje moderní rodinný dům, na jehož pozemku je umístěn.

Výhody modulárního řešení Blokki:

  • Rychlá výstavba – hotovo za cca 6 týdnů

  • Minimální zásah do okolí

  • Stavba byla na připravené betonové patky usazena zcela dokončená – včetně kompletně vybavené sauny

Dispoziční řešení najdete v přiloženém půdorysu.

Modul: Reference