atypická realizace

Modulární zázemí pro prodejce vozů Renocar

2025

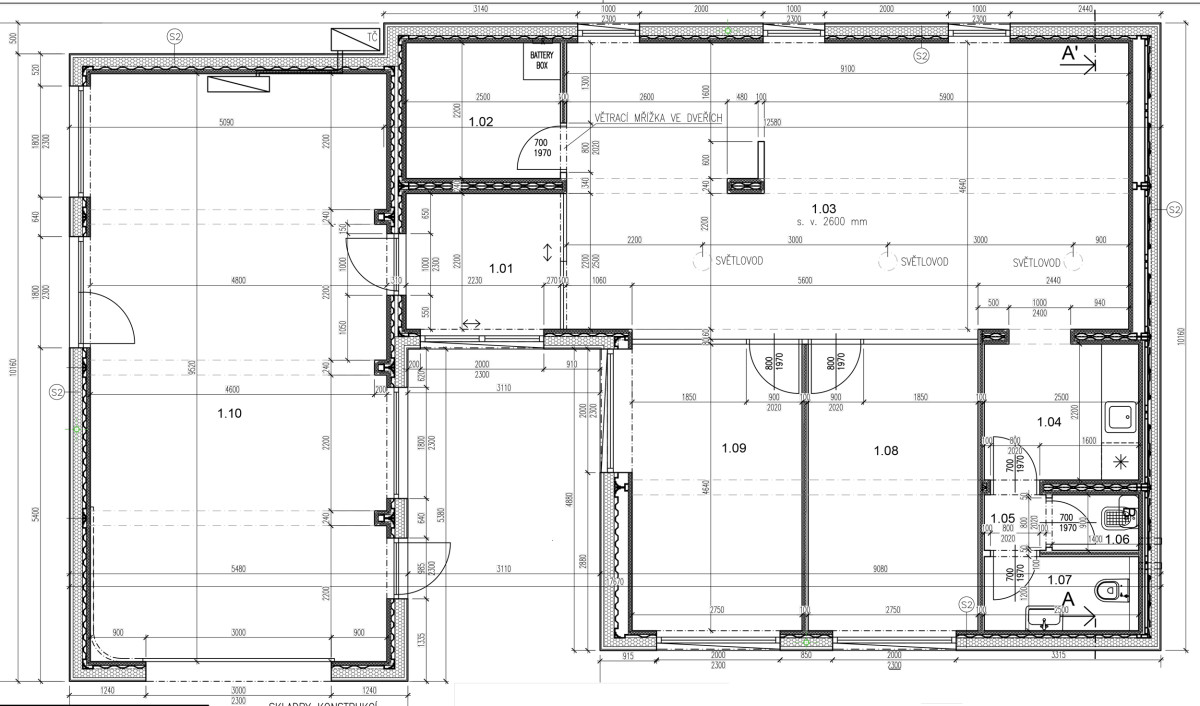
Naším úkolem bylo navrhnout a postavit modulární objekt s plochou střechou pro společnost Renocar a.s., renomovaného prodejce automobilů. Zadání kombinovalo reprezentativní funkci s praktickým provozem – v jedné stavbě mělo vzniknout místo pro prezentaci a předání vozů, administrativní zázemí, kanceláře, jednací prostor, kuchyňka a sociální zařízení. Požadovaná užitná plocha objektu alespoň 130 m².

Zajistili jsme kompletní projektovou dokumentaci pro stavební povolení, následně realizovali samotnou stavbu včetně základové desky, přípojek a úprav okolního terénu.

Exteriér i interiér jsme zpracovali v souladu s architektonickým návrhem klienta. Fasáda je obložena bílými deskami z vláknocementového materiálu Cembonit. Interiér působí elegantně a vzdušně – dominují šedé plochy v kombinaci s prosklenými příčkami v tenkých nerezových rámech.

Stavbu jsme vybavili elektrickým podlahovým vytápěním s uhlíkovou topnou fólií a klimatizací pro komfort v letních měsících.

Tato realizace je důkazem, že modulární stavba může splnit vysoké nároky jak estetické, tak funkční. Jsme hrdí, že si nás pro spolupráci vybrala právě společnost Renocar a.s.

Modul: Reference