útulný výměnek na zahradě rodinného domu
2024
Zadáním této realizace bylo vytvořit pohodlné a stylové zázemí pro návštěvy, které se v budoucnu promění v plnohodnotné bydlení pro maminku majitelů – tzv. výměnek.
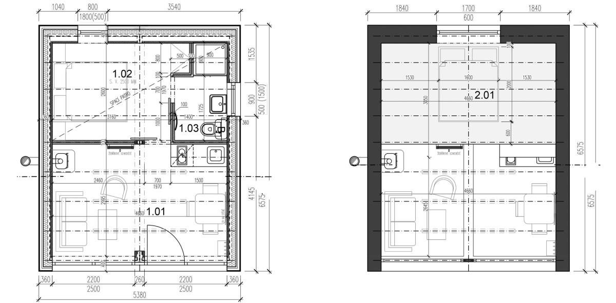
Klienti si vybrali naši typovou stavbu 1blokki home A, která ideálně splňuje požadavky na kompaktní, funkční a estetické řešení. Výsledkem je půvabný malý domek s osobitou atmosférou. Paní majitelka má výborný cit pro detail, což se odráží v pečlivě doladěném interiéru – působí útulně, promyšleně a zároveň vzdušně.
Domek stojí na konstrukci z jednoho lodního kontejneru a nabízí:
– obývací pokoj s kuchyňským koutem
– ložnici
– prostornou koupelnu
– otevřené spací patro s výhledem do obytného prostoru
Interiér je obložen smrkovou biodeskou, která prostoru dodává hřejivý přírodní vzhled. O tepelný komfort se stará elektrická topná fólie doplněná krbovými kamny. Oproti standardnímu provedení přibylo v koupelně navíc podélné okno, které přináší více denního světla. Tato realizace je důkazem, že i malý dům může mít velké srdce.
blokki
Provozní doba
pondělí - pátek
8:00 - 17:00