2blokki s úpravou půdorysu - 2kk
2023
Typový domek 2blokki home C realizovaný na Vysočině, těsně u hranice s Chko Žďárské vrchy. Vzhled domu podléhal schválení Chko.
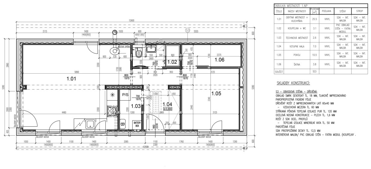
Vnitřní dispozice o rozloze 52,5 m² byla upravena na míru pro potřeby trvalého bydlení dvou osob. Interiér tvoří obývací pokoj s kuchyňským koutem, ložnice se šatnou, koupelna, technická místnost a zádveří. Celková zastavěná plocha stavby 69 m².
Sedlová střecha má klasický tvar prodloužený do stran o přesahy. Střešní prostor je přístupný z interiéru přes stropní skládací schůdky. Topení elektrické podlahové pomocí uhlíkové folie (s ovládáním přes digitální termostaty) v kombinaci s krbovými kamny, v době instalace zatím ve formě přípravy.
Naše realizace zahrnovala zpracování projektové dokumentace, vyřízení povolení stavby, dodávku stavby včetně zhotovení základů a napojení na infrastrukturu.
blokki
Provozní doba
pondělí - pátek
8:00 - 17:00