bungalov od Blokki

2.5blokki home T

2024

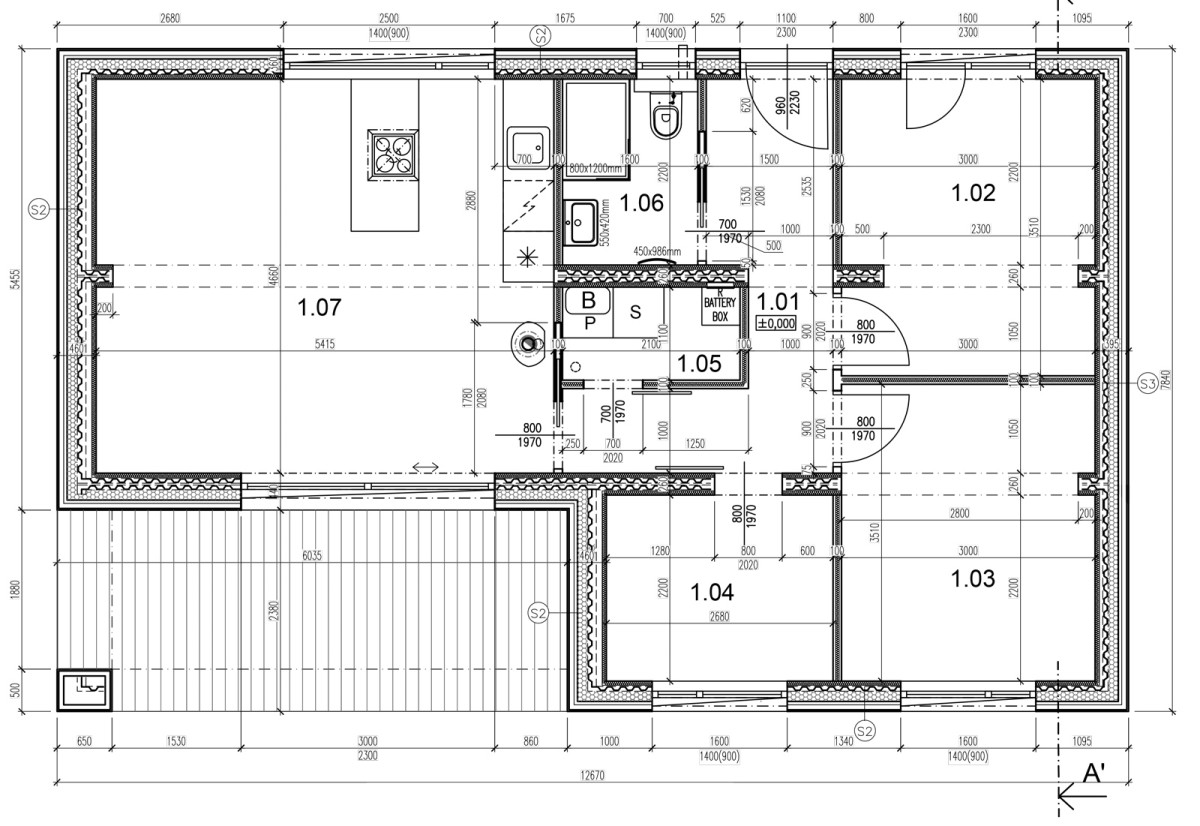
Rodinný dům 2.5blokki home T s půdorysem 4 kk v Plzeňském kraji. Naším úkolem bylo dílo tzv. „na klíč“, od projektu, přes vyřízení povolení, vlastní stavbu, zemní práce, založení a přípojky, až po montáž kuchyně a fotovoltaické elektrárny. Kompletní realizaci jsme zvládli za 4 měsíce. Celý proces hezky shrnuli naši klienti, jejichž recenzi sdílíme níže.

Stavba je na pozemku umístěna tak, aby zastřešená terasa, která je součástí stavby, skýtala pohledy do zahrádky a umožnila obyvatelům domu relaxovat v soukromí. Sousední přístavek je umístěn těsně na hranici pozemku a tak bylo nutné pohlídat správný požární odstup. Fasáda Blokki je dřevěná, pouze strana směrující k této sousední stavbě byla obložena šedým nehořlavým cembonitem. Tím se dosáhlo nutného zkrácení požárního odstupu.

Interiér je příjemně světlý, v obývacím pokoji stěny zdobí dřevěné obklady s březovou dýhou, ložnice a pracovna mají stěny čistě bílé. Obytná plocha bez terasy 65,4 m², zastavěná plocha včetně zastřešené terasy 99,4 m².

Stavba se řadí do energetické třídy B. Vytápění elektrické podlahové formou uhlíkové folie. Jako doplňkový zdroj tepla slouží krbová kamna. Okna a vstupní dveře jsou opatřeny izolačními trojskly. Součástí technologie jsou rekuperační rozvody a střešní fotovoltaická elektrárna.

Recenze zákazníka

„Koncem minulého roku jsme se s partnerkou rozhodli vyměnit panelový byt za dům na klidném venkově. Odhodlat se nebylo snadné, zná to většina lidí, která již stavěla. Odhodlání bylo to nejtěžší, samotná realizace domu Blokki 2,5T pak již byla opravdu procházkou růžovým sadem...

Myšlenka:
Chtěli jsme financovat přízemní dům pouze z prodeje bytu a najít bydlení, které nám bude sloužit i v důchodovém věku. Bydlení jsme však chtěli mít lehce nadstandardní a připravené na případné další prvky komfortu, aby jsme si bydlení opravdu užívali v maximálním pohodlí.

Proč jsme šli touto cestou?
Koncept Blokki a minimalistický design nás oslovil. Oceňujeme konstrukční stabilitu systému i odhlučnění interiéru, které předčilo naše očekávání. Velmi se nám líbil individuální přístup firmy z Vysočiny, která nás provedla celou realizací od začátku do konce a vždy přidala i něco navíc.

Realizace:
Blokki nám pomohlo s výběrem ideální orientace domu na pozemku, firma vyřídila stavební ohlášení a veškerou administrativu až po kolaudaci. Oceňujeme, že vše proběhlo bez problémů a opravdu rychle. Instalace kuchyňské linky a dalšího vybavení nám rovněž ušetřilo mnoho práce, takže jsme se do nového domu mohli nastěhovat hned po předání.

Co nás nejvíce překvapilo:

  • Vynikající komunikace a ochota pomoci i nad rámec smlouvy.
  • Rychlá realizace - od podpisu smlouvy do předání domu pouhé 4 měsíce.
  • Smysl pro detail a precizní provedení všech prací.
  • Dodržení cenové nabídky - slovo "vícenáklady" je cizím slovem.

Závěr:
Jsme nadšeni z našeho nového bungalovu. Proklientský přístup je příkladný a stavět s vámi bylo opravdu snadné i pro laika, za kterého se považuji. Rád bych zde pochválil jmenovitě všechny, kteří nám pomáhali, ale jste opravdu skvělý tým a pochvalu a poděkování si zasloužíte všichni. Děkujeme za splněný sen o bydlení na vsi!

Blokki tak můžeme s klidným svědomím doporučit všem, kteří hledají spolehlivého partnera pro stavbu modulárního domu za cenu bytu a nechtějí ztrácet to nejcennější, čas.

S přáním všeho nejlepšího nejen v pracovním životě celému týmu, Lenka a Honza“

Modul: Reference