rekreační chatka navržená na míru
2023
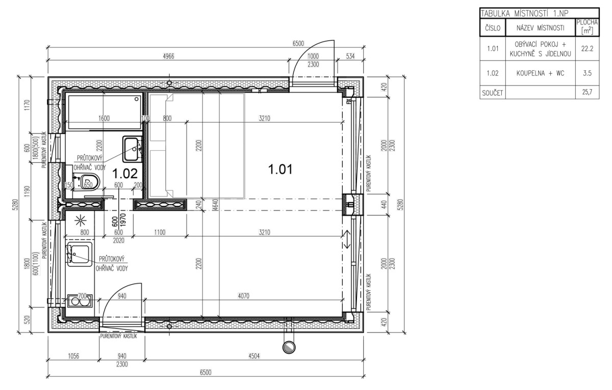
Rekreační chata v klidné chatové oblasti na okraji Havlíčkova Brodu s nosnou konstrukcí z jednoho kusu lodního kontejneru. Klasický dvanáctimetrový kontejner HC 40´jsme rozpůlili na dva šestimetrové díly a tyto díly jsme spojili delšími stranami k sobě. Vzniknul tak příjemný otevřený vnitřní prostor o celkové obytné ploše 25,7 m². Vstupní dveře jsou na přání klienta otočeny panty do exteriéru, aby v interiéru nezabíraly prostor.
Chatka má přípravu pro krbová kamna, hlavní zdroj tepla ale zajišťuje energeticky šetrná elektrická topná folie s možností vzdáleného ovládání. Přehřívání v letním období brání kovové předokenní žaluzie. Fasádu zdobí severský modřín, který po pár letech zešedne a stavba tak opticky splyne se zahradou.
Zákaznická recenze:
"Rád bych tímto vyjádřil svou vděčnost za velmi profesionální a zejména lidský přístup celého týmu Blokki. Naše spolupráce probíhala relativně rychlým tempem a dokonce mě pozitivně překvapila rychlost dokončení stavby. Jakékoliv dotazy či drobné nedostatky byly řešeny na úrovni korektní firmy. Ještě jednou děkuji a držím palce."
David Gembický
blokki
Provozní doba
pondělí - pátek
8:00 - 17:00