první realizace Blokki v Německu

2.5blokki home individual

2023

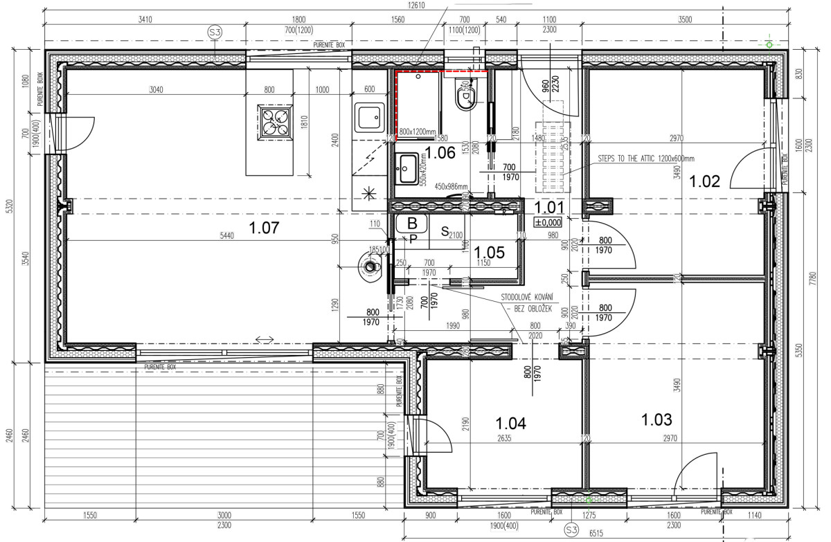
V Bavorsku, v malé vsi zhruba 30 km severně od Norimberku, jsme ve druhé polovině 2023 realizovali dům o velikosti dvou a půl modulů. Půdorys vychází z naší typové stavby 2.5bloki home B. Pozemek o výměře cca 650 m2 je svažitý, podloží skalnaté. Místní regulativ je poměrně přísný a neumožňuje stavbu s plochou střechou. U typové stavby nevyhovovala orientace vstupních dveří přes terasu. Na základě požadavků klientky a omezení týkajících se pozemku jsme proto navrhli zásadní úpravy typové stavby. Co se týká interiéru, hlavním přáním klientky bylo zvětšení dvou ložnic, oddělená pracovna a situování hlavního vstupu směrem k přístupové cestě. Všechny tyto požadavky se nám podařilo splnit, s výsledkem je naše zákaznice nad míru spokojená. Dům opticky harmonizuje s okolní zástavbu.

Nejvýraznější klientskou změnou je sedlová střecha se sklonem 45° rozprostírající se přes 2 moduly. Třetí poloviční modul kryje střecha plochá. Střecha poskytuje úložný prostor, je přístupná z interiéru přes skládací půdní schody zapuštěné ve stropě zádveří.

Dům je vytápěn elektrickým podlahovým topením, doplňkově pak krbovými kamny. Ohřev užitkové vody je solární, s možností využití elektřiny ze sítě ve dnech, kde je nedostatek slunečního svitu. Interiér zdobí stěny obložené smrkovou biodeskou, vyjma prostoru za sprchovým koutem, kde jsme použili velkoplošné vinylové panely v kašmírové barvě. Na podlaze je světle šedá betonová stěrka. Fasáda je provětrávaná, obložená surovým modřínem. Stavbu je realizovali na klíč, včetně založení a vybavení vestavným nábytkem. Stavební povolení vyřídil lokální architekt. Celá realizace trvala 5 měsíců.

Zákaznická recenze:

"Chtěla jsem si udělat radost. Odejít z města na venkov a zařídit si dům. Nevelký dům který bude schopný včlenit se do nějaké menší vesničky, bude moderní, ale nebude narušovat svoje okolí, nanejvýš svojí střízlivostí.

Nejen že se to domku Blokki podařilo, ono to navíc předčilo moje očekávání. Domek Blokki nejen, že je ve svém stylu jednouchý a krásný, dělá navíc velmi sebevědomý dojem! I když je nevelký, působí větší. I když je střídmý, přitahuje pohledy nejen kolemjdoucích, ale i bavorských usedlíků, kteří se z nového dřevem obloženého souseda opravdu velice těší. 

Absolutním překvapením pro mě zůstává, jak rychle můj Blokki vznikl. Od prvního návrhu do hotového domu utekly pouhé 3 měsíce. 

Také jsem nadšená a týmu Blokki vděčná za vypracování interiéru přesně podle mých představ. 

Díky bohatým zkušenostem týmu Blokki a jejich ochotě jít i do nových technologií (např. při výrobě podlahové stěrky) si teď užívám zařizování a dekoraci domu.

Ráda tuto mou zkušenost sdílím a celému týmu přeji další úspěšné realizace! "

S radostí S. Nováková

Modul: Reference