koupelnový modul do kempu u Vltavy
2023
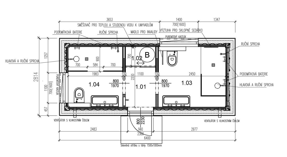
Specialitka – tak by se dala definovat zakázka, kterou jsme na jaře 2023 dokončili ve Vraném nad Vltavou. Oslovili nás majitelé tamního kempu se zadáním výstavby modulu s bezbariérovou koupelnou ve vyšším standardu. Výsledkem je stavba s nosnou konstrukcí z jedné poloviny lodního kontejneru, která obsahuje dvě luxusní koupelny (z nichž jedna je bezbariérová), malé zádveří a vestavnou skříň ukrývající bojler. Kemp navštěvují převážně rodiny s dětmi, proto jsou sprchové kouty dostatečně prostorné a pohodlné. Pojmou najednou celou rodinu. Stěny jsme obložili prémiovým deskovým vinylem Kronospan Rocko Wall, což je výborná alternativa klasických keramických kachliček. Majitelům Camping Matyáš děkujeme za velice příjemnou spolupráci.
blokki
Provozní doba
pondělí - pátek
8:00 - 17:00