typová stavba na netypickém základu
2022
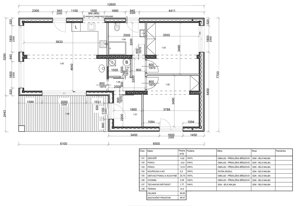
Manželé před pár lety koupili starou chatku na menším svažitém pozemku, v krásné rekreační oblasti poblíž soutoku Sázavy s Vltavou. Chatku odstranili, ale starý bytelný sklep zachovali. Nad něj si od nás nechali postavit moderní dům s nosnou částí ze tří lodních kontejnerů, typový 2.5blokki home T. Půdorys odpovídá typové stavbě. Klientské změny zahrnovaly: otočení půdorysu o 180°, přidání a zvětšení vybraných oken. Stavba má zastavěnou plochu 100 m², obytnou plochu 80,6 m² (včetně zastřešené terasy), vnitřní dispozici 3kk. Fasádu zdobí sibiřský modřín. Interiérové stěny jsou obloženy smrkovou spárovkou. Topení elektrické podlahové kombinované s krbovými kamny. Stavba slouží pro krátkodobé pronájmy i jako naše ukázková referenční stavba. V případě zájmu si u nás rezervujte prohlídku pomocí kontaktního formuláře.
Zákaznická recenze:
"Ještě před zásadním zdražením nemovitostí v roce 2020 se nám podařilo koupit svažitý pozemek s chatkou s krásnými výhledy do okolí, kde šlo, v rámci územního plánu, postavit stavbu pro trvalé bydlení. Záměr byl ryze investiční s tím, že postavíme a poté prodáme.
Pozemek byl celkem malý a územní plán byl neúprosný. Navíc jsme měli velmi limitovaný rozpočet. Zprvu jsme si nechali od místního architekta navrhnout patrový dům s velkorysou užitnou plochou, ale po návštěvě dodavatele dřevostavby jsme zjistili, že bychom výrazně náš rozpočet překročili.
Navíc došlo již ke zmiňovanému zásadnímu zdražování nemovitostí, rozhodli jsme se tedy pro to, že si pozemek necháme a postavíme na něm menší, přízemní stavbu, se kterou bychom se vešli do našeho rozpočtu a kterou budeme v pokročilejším věku využívat pro sebe, na důchod.
Shodou náhod jsme se dozvěděli o společnosti Blokki a díky jejich variantám, které přesně splňovaly podmínky maximální zastavěnosti na pozemku a velmi příznivým cenám za kompletní stavbu na klíč, jsme si mohli vybírat i z několika typů domů.
Pro nás byla jasná volba dům 2,5 Blokki Home T ze 3 lodních kontejnerů, kde půlka kontejneru je využitá pro zastřešenou terasu, která se tak stává celoročně obyvatelnou.
Skvěle promyšlený interiér nebylo nutné nijak zásadně měnit, my jsme si nechali akorát zvětšit okna a některá přidat, což firma Blokki nabízí bez doplatku, v rámci projektu. Líbil se mi však obrovsky přístup celého týmu, kdy cokoliv posunout, zvětšit i doplnit již ve fázi výstavby (tedy kromě oken a místností, to již, samozřejmě nešlo, když už bylo vyřezáno:) ), nebyl vůbec žádný problém. A toto je zásadní věc, které si moc vážíme, protože se často rozhodnutí mění v čase výstavby. A to, že byla možnost přidat kupříkladu bidet, zvětšit umyvadlo, doosadit světla nad všechna okna zvenku, přidat nezámrzný kohoutek, držák na venkovní houpačku apod., jen vskutku dokazuje, jaký je tým Blokki plný profesionálů a lidí, kteří se do vás vcítí a vyjdou vám vstříc.
Děkujeme moc celému týmu Blokki za jejich skvělou práci a přejeme spousty spokojených zákazníků."
Tereza a Jakub Eichlerovi
blokki
Provozní doba
pondělí - pátek
8:00 - 17:00