čtyřmodulová stavba v CHKO Železné hory
2022
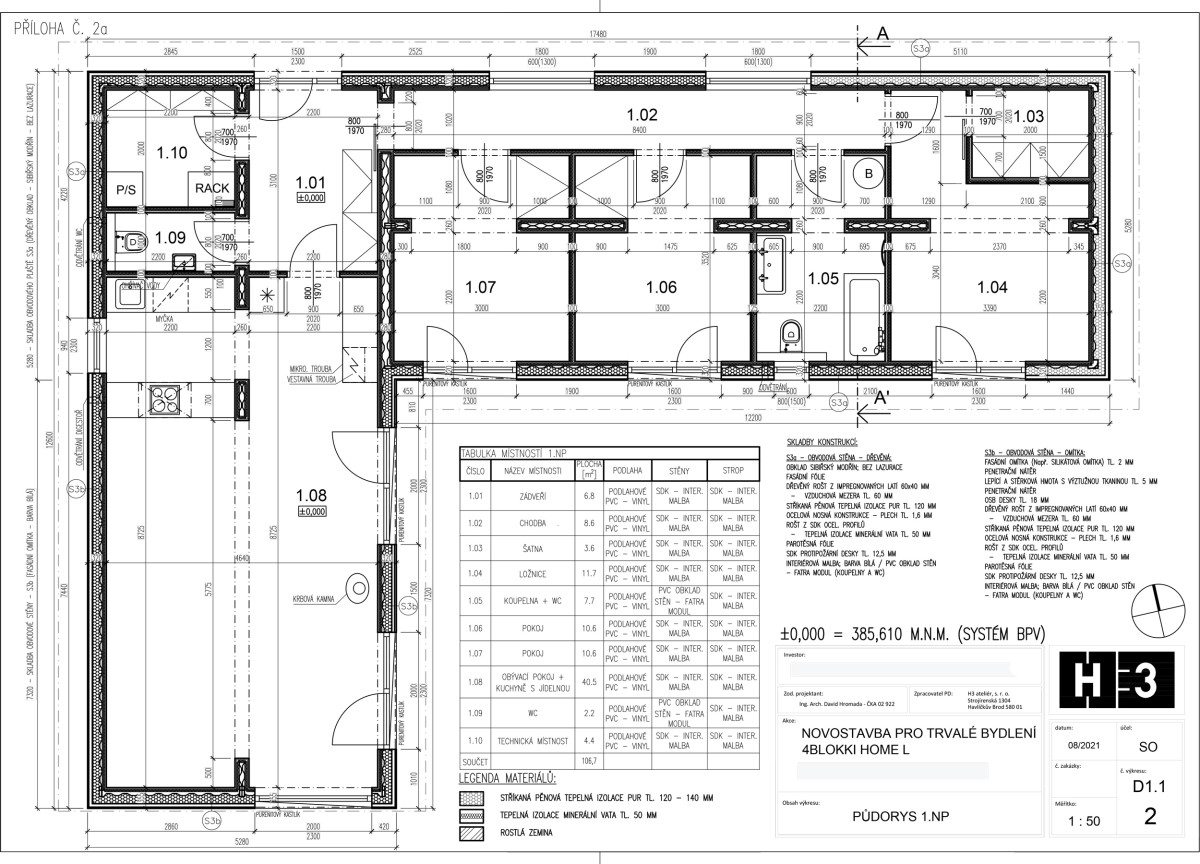
Kompletní realizace domu pro trvalé bydlení, vycházející z naší typové varianty 4blokki home L. Aby dům mohl být kolaudován v lokalitě CHKO Železné hory, bylo třeba doplnit nebo změnit některé fasádní prvky, například sedlovou střechu nebo materiál fasády. Naše dodávka zahrnovala projekční studii pro CHKO, zpracování kompletní projektové dokumentace, vyřízení povolení stavby, stavbu vlastního domu i vnější práce, jako realizaci biočistírny odpadní vody a usazení retenční nádrže.
blokki
Provozní doba
pondělí - pátek
8:00 - 17:00