stavba na trvalé bydlení dle individuálního zadání
2018
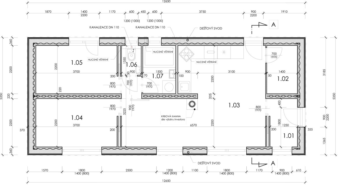
2blokki home na trvalé bydlení. Stavba ze dvou lodních kontejnerů s vnitřním uspořádáním dle individuálního zadání klientky. Majitelka miluje květiny, přáním byla menší okna směrovaná do ulice s parapety, které ponesou květinové truhlíky. Modřínová fasáda bez exteriérové lazurace je ideální pro ty, kteří si přejí bezúdržbový povrch a líbí se jim postupné zešednutí modřínu. Fotografie byly pořízeny po 4 letech od realizace stavby.
blokki
Provozní doba
pondělí - pátek
8:00 - 17:00