1. z rodiny Blokki s klasickou fasádou
2021
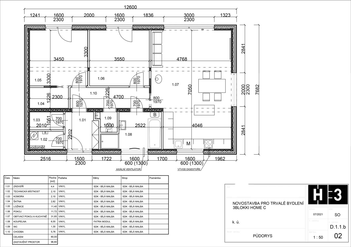
Atypická realizace 3blokki home C je unikátní díky fasádě s bílo-šedou silikátovou omítkou. Novostavba pro trvalé bydlení je umístěna v lokalitě, kde územní plán zamezoval instalaci dřevem obložené fasády. Vnitřní prostor skýtá 80 metrů čtverečních pro bydlení, zahrnuje 2 ložnice, šatnu, obývací pokoj, koupelnu se sprchou i vanou a oddělenou toaletu. Topení elektrické podlahové doplněné krbovými kamny. Všechna okna s izolačními trojskly stíní venkovní žaluzie.
blokki
Provozní doba
pondělí - pátek
8:00 - 17:00