kontejnerová stavba ve vesnické zástavbě

2blokki home C se sedlovou střechou

2021

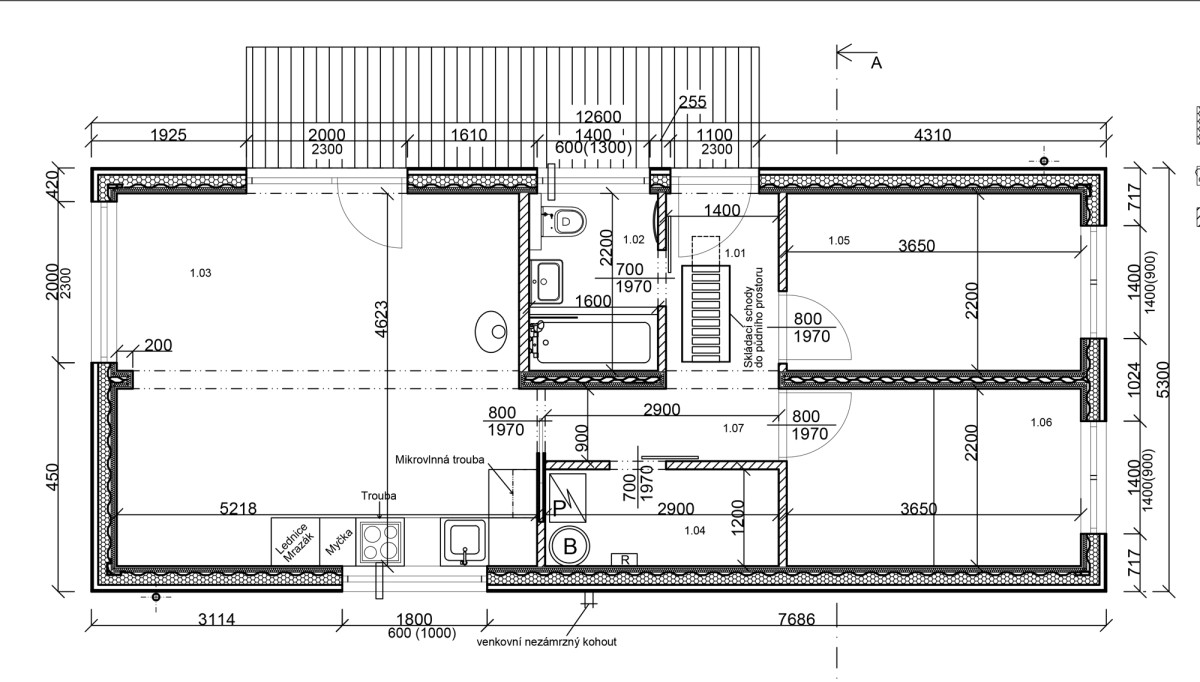
Realizace této dvoumodulové stavby je důkazem možnosti umístit kontejnerovou stavbu i do vesnické zástavby. Stavba vychází z typového domku 2blokki home C. Územní plán v obci neumožnil stavbu s plochou střechou. Projekt jsme zastřešili střechou sedlovou se sklonem 36° s krytinou z falcovaného plechu. Střecha je přístupná z interiéru přes skládací půdní schůdky a využitelná jako skladovací prostor. Domek zdobí černá eurookna s izolačními trojskly. Interiér má stěny obloženy březovou truhlářskou překližkou.

Zákaznická recenze:

"Konečný výsledek splnil očekávání. Trochu trable s počasím během dodávky byly nepredvidatelnou pihou na kráse.
Domek je moc pěkný."

Mudr. Jana Mašková

Modul: Reference