novostavba pro trvalé bydlení
2021
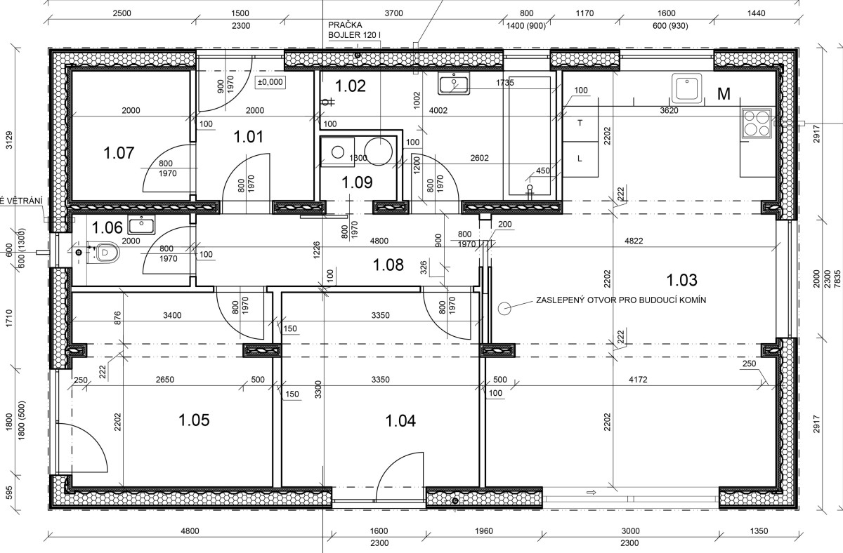
Realizace stavby pro trvalé bydlení, typový domek 3blokki home C s nosnou konstrukcí ze tří 40 stop dlouhých lodních kontejnerů. Exteriér zdobí sibiřský modřín v přírodní podobě, bez lazurace. Interiér sebou nese množství klientských změn v podobě přesunutí toalety mimo koupelnu (záměrem bylo oddělené WC), změny velikostí oken v koupelně a ložnici a posuny oken. Stavba stojí na mírném svahu, obklady a vybavení koupelny, vnější práce a založení řešil zákazník svépomocí.
blokki
Provozní doba
pondělí - pátek
8:00 - 17:00