Odsazení od menu

Sedlová střecha na 1.5blokki home

26/11/2021

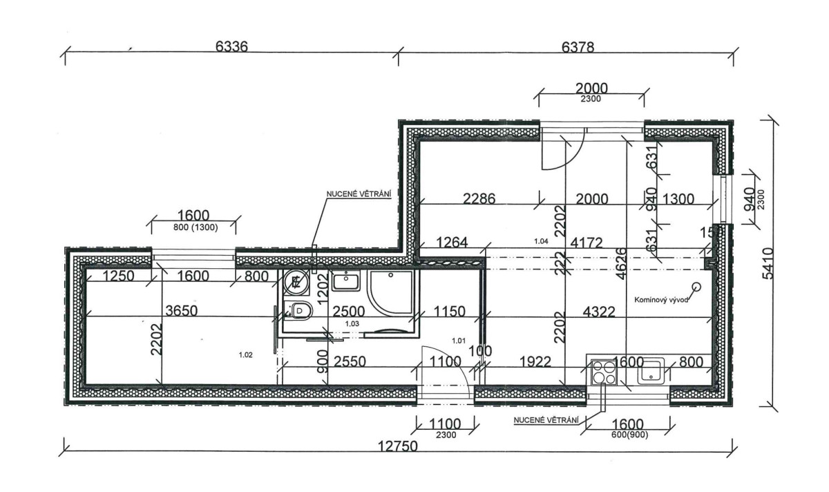
Poznali byste, že je domeček na fotkách z lodních kontejnerů? V Blokki z ničeho jiného nestavíme, takže je. Jen ta sedlová střecha trochu mate. Jedná se o typovou stavbu 1.5blokki home. Sedlovou střechu domek mít musel, protože v dané lokalitě územní plán plochou střechu nepovoluje. A vlastně je to asi dobře. Stavba hezky zapadla do okolní zástavby.

Sedlová střecha na 1.5blokki home
Modul: Blog